Retour
Bureaux - 922m² à Acheter
. Accès privatif sur rue
. Bon état
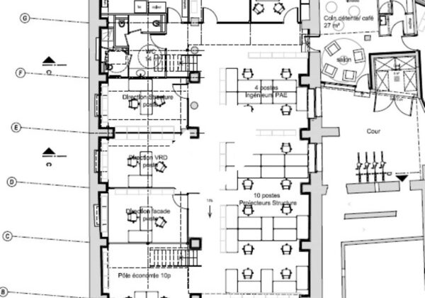
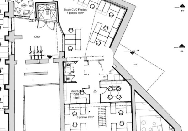
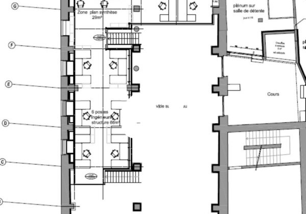
. 2 Open Space
. 9 Bureaux cloisonnés
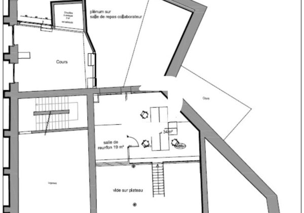
. Salle de réunion en R-1
. 2 mezzanines
. Salle de conférence
. Local technique
. Cuisine
. 2 blocs Sanitaires privatifs (5 sanitaires)
. Douche
. Décloisonnement possible
. Cour
. Parquet
. Prises RJ45
. Alarme
Bureaux - 922m² à Acheter
MONTEE DE LA BUTTE LYON (69001)
DESCRIPTION
A proximité immédiate du centre-ville, Immprove vous propose à la vente 922 m² de bureaux atypiques sur les Quais Saint-Vincent, offrant de larges possibilités d’aménagement pour répondre à vos besoins spécifiques.
En savoir plus
. Immeuble ancien. Accès privatif sur rue
. Bon état
. 2 Open Space
. 9 Bureaux cloisonnés
. Salle de réunion en R-1
. 2 mezzanines
. Salle de conférence
. Local technique
. Cuisine
. 2 blocs Sanitaires privatifs (5 sanitaires)
. Douche
. Décloisonnement possible
. Cour
. Parquet
. Prises RJ45
. Alarme
Consommations énergétiques


Informations non contractuelles
Tableau des divisibilités
| Type | Étage | Surface | Prix achat (€/m² HT HC) |
Charges (achat) (€/m² HT HC) |
|---|---|---|---|---|
| Bureaux | RDC + Mezzanine | 301 m² | 3 796.10 | Prix sur demande |
| Bureaux | RDC + Mezzanine | 621 m² | 3 796.10 | Prix sur demande |
Caractéristiques
- Surface 922 m²
- Etat des locaux Bon état
Adresses
approximatives
Adresses
précises
Les entrepreneurs ayant consulté cette offre ont aussi consulté celles ci
Les services Immprove
Une gamme complète de services qui facilitent vos démarches et destinée à satisfaire vos attentes