Retour
Bureaux - 471m² à Acheter ou à Louer
. Accès PMR possibilité d'ERP
. Accès privatif sur rue
. Double accès
. Aire de chargement
. Monte-charge
. Climatisation réversible . Surface carrez : 471m²
. Surface totale au sol : 612m²
. 2ème sous-sol : surface non carrez : 130m²
. 1 jardin à jouissance privative de 54m²
. 1 terrasse à jouissance privative 23m²
. Salle de réunion
. Espace détente
. Cuisine
. Sanitaires privatifs
. Locaux rationnels et modulables
. 1 box attenant de 2 places au R-2
. 1 box séparé de 1 place au R-2
. 3 places au R-1 (dont 2 loués en externe)
Bureaux - 471m² à Acheter ou à Louer
16 RUE ROTTEMBOURG PARIS (75012)
DESCRIPTION
Au pied de la Coulée Verte (12ème), dans un cadre calme et verdoyant, IMMPROVE vous propose une surface de bureaux d’environ 470 m² à la vente. Accès privatif sur rue. Aire de chargement au 1er sous-sol. Les locaux sont accompagnés de parkings boxés en sous-sol ainsi qu’un jardin et d’une terrasse privative.
Les locaux sont lumineux, rationnels, traversants et modulables, ils sont équipés d’un monte-charge et de la climatisation réversible. Accès PMR, possibilité d’ERP.
En savoir plus
. Immeuble moderne. Accès PMR possibilité d'ERP
. Accès privatif sur rue
. Double accès
. Aire de chargement
. Monte-charge
. Climatisation réversible . Surface carrez : 471m²
. Surface totale au sol : 612m²
. 2ème sous-sol : surface non carrez : 130m²
. 1 jardin à jouissance privative de 54m²
. 1 terrasse à jouissance privative 23m²
. Salle de réunion
. Espace détente
. Cuisine
. Sanitaires privatifs
. Locaux rationnels et modulables
. 1 box attenant de 2 places au R-2
. 1 box séparé de 1 place au R-2
. 3 places au R-1 (dont 2 loués en externe)
Consommations énergétiques


Informations non contractuelles
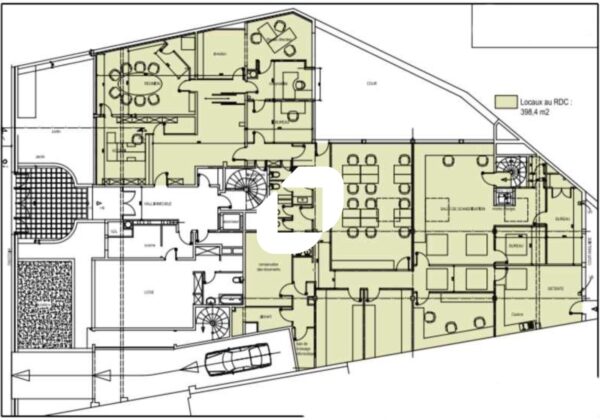
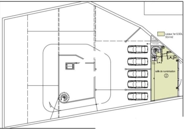
Tableau des divisibilités
| Type | Étage | Surface | Loyer (€/m²/an HT HC) |
Charges (€/m²/an HT HC) |
Prix achat (€/m² HT HC) |
Charges (achat) (€/m² HT HC) |
|---|---|---|---|---|---|---|
| Bureaux | 1er Sous-Sol | 76 m² | 414.01 | 31.84 | 7 218.68 | 31.84 |
| Parkings | Sous-Sol | Prix sur demande | Prix sur demande | Prix sur demande | Prix sur demande | |
| Bureaux | Rez-de-Chaussée | 395 m² | 414.01 | 31.84 | 7 218.68 | 31.84 |
Caractéristiques
- Surface 471 m²
- Etat des locaux Etat d’usage
- Nbre Parking 6
Adresses
approximatives
Adresses
précises
Nos nouveaux biens qui pourraient vous intéresser
Les entrepreneurs ayant consulté cette offre ont aussi consulté celles ci
Les services Immprove
Une gamme complète de services qui facilitent vos démarches et destinée à satisfaire vos attentes