Retour
Bureaux - 2 241m² à Louer
. Hôtesse d'accueil
. Contrôle d'accès
. Site clos
. Climatisation réversible
. Accès sécurisé par badge . Vaste hall d’accueil avec double HSP de 6 m
. Batterie d’ascenseurs en duplex
. Chauffage individuel et système de climatisation réversible
. Fenêtres vitrées toutes hauteurs
. Plateaux traversants lumineux
. Faux plancher techniques
. Des prestations de haut standing (plateaux lumineux et flexibles, espaces végétalisés, architecture intérieure contemporaine, etc.)
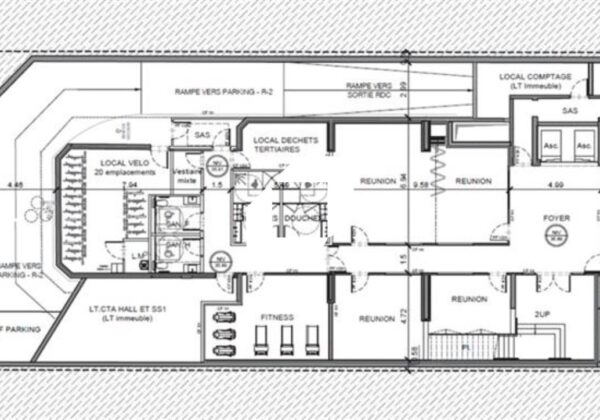
. Parkings vélos : 20 places
. Parkings voitures : 30 places dont 8 électriques à 2 500 €/U/an
. Parkings motos : 4 places à 1 250 €/U/an
. Capacitaire : 220 personnes
. Certifications : BREEAM niveau Excellent, Wiredscore gold à l’étude
Bureaux - 2 241m² à Louer
19 RUE ALPHONSE DE NEUVILLE PARIS (75017)
DESCRIPTION
A proximité de la Place Pereire, Immprove vous propose à la vente un immeuble vide indépendant en pleine propriété de 2300 m² dont 2000 m² existants et 300 m² d’extension à réaliser (permis obtenu et purgé). Immeuble en R+7 sur 3 niveaux de sous-sol.
Roof top / Jardin / parkings.
En savoir plus
. Immeuble restructuré. Hôtesse d'accueil
. Contrôle d'accès
. Site clos
. Climatisation réversible
. Accès sécurisé par badge . Vaste hall d’accueil avec double HSP de 6 m
. Batterie d’ascenseurs en duplex
. Chauffage individuel et système de climatisation réversible
. Fenêtres vitrées toutes hauteurs
. Plateaux traversants lumineux
. Faux plancher techniques
. Des prestations de haut standing (plateaux lumineux et flexibles, espaces végétalisés, architecture intérieure contemporaine, etc.)
. Parkings vélos : 20 places
. Parkings voitures : 30 places dont 8 électriques à 2 500 €/U/an
. Parkings motos : 4 places à 1 250 €/U/an
. Capacitaire : 220 personnes
. Certifications : BREEAM niveau Excellent, Wiredscore gold à l’étude
Consommations énergétiques


Informations non contractuelles
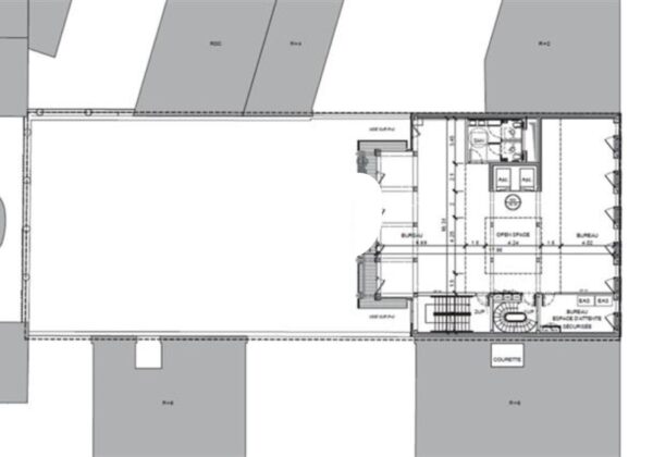
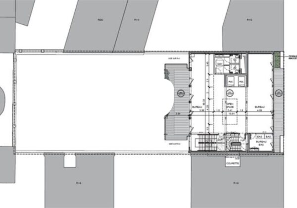
Tableau des divisibilités
| Type | Étage | Surface | Loyer (€/m²/an HT HC) |
Charges (€/m²/an HT HC) |
|---|---|---|---|---|
| Bureaux | 3ème Sous-Sol | 10 m² | 830.00 | Prix sur demande |
| Bureaux | 2ème Sous-Sol | 42 m² | 830.00 | Prix sur demande |
| Bureaux | 1er Sous-Sol | 318 m² | 830.00 | Prix sur demande |
| Bureaux | Rez-de-Chaussée | 216 m² | 830.00 | Prix sur demande |
| Bureaux | 1er étage | 223 m² | 830.00 | Prix sur demande |
| Bureaux | 2ème étage | 249 m² | 830.00 | Prix sur demande |
| Bureaux | 3ème étage | 249 m² | 830.00 | Prix sur demande |
| Bureaux | 4ème étage | 249 m² | 830.00 | Prix sur demande |
| Bureaux | 5ème étage | 249 m² | 830.00 | Prix sur demande |
| Bureaux | 6ème étage | 245 m² | 830.00 | Prix sur demande |
| Bureaux | 7ème étage | 191 m² | 830.00 | Prix sur demande |
Caractéristiques
- Surface 2 241 m²
- Etat des locaux Restructuré
Adresses
approximatives
Adresses
précises
Nos nouveaux biens qui pourraient vous intéresser
Bureaux - 4 110m² Divisibles à partir de 1 986 m²
à Louer
PARIS (75012)
Voir le bien
Prix sur demande
Les entrepreneurs ayant consulté cette offre ont aussi consulté celles ci
Les services Immprove
Une gamme complète de services qui facilitent vos démarches et destinée à satisfaire vos attentes