Retour
Disponibilité 01/01/2027
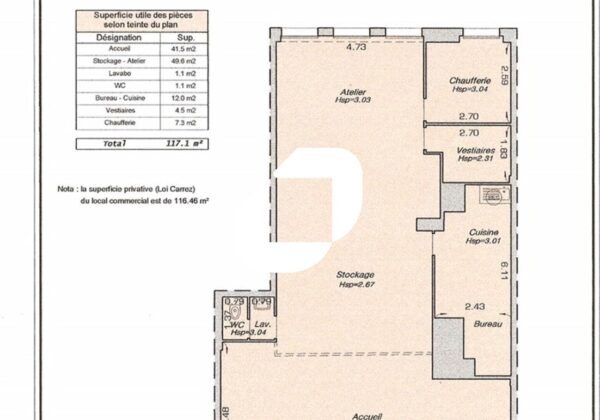
À Louer Locaux Commerciaux 117 m² PARIS (75015)
Ajouter au comparateur
Vous souhaitez faciliter votre recherche ?
Créez un compte
Présentation du bien
IMMPROVE vous propose à la location, un local commercial d'environ 117m² au RDC. Le local se situe Rue Lecourbe, en plein cœur du 15e arrondissement, à proximité d'enseignes nationales telles que Mr Bricolage et Naturalia. L'environnement est commerçant et résidentiel.
Surface totale
Nature
Divisibilité
Etat des locaux
117 m²
Locaux Commerciaux
Non
Bon état
Prix & Conditions
Loyer :
Prix sur demande
Prix sur demande
Prix sur demande
Impôt foncier :
2032.00
Dépôt de garantie :
3 mois de loyer HT HC
Conditions location :
. Charges annuelles : 3520€
. Garantie bancaire autonome à première demande : à prévoir en fonction du dossier
. Garantie bancaire autonome à première demande : à prévoir en fonction du dossier
Prestations & équipements du bien
Le bâtiment
Immeuble moderne mixte
Les espaces de travail
Fibre optique . Locaux modulables
Prestations spécifiques
Chauffage CPCU
Autres
Linéaire de façade 9m
Emplacement commerçant
. Charges annuelles : 3520€
. Garantie bancaire autonome à première demande : à prévoir en fonction du dossier
Répartition & surfaces des espaces
Tableau des divisibilités
| Type | Étage | Surface | Loyer (€/m²/an HT HC) |
Charges (€/m²/an HT HC) |
|---|---|---|---|---|
| Locaux Commerciaux | Rez-de-Chaussée | 117 m² | Prix sur demande | Prix sur demande |
Performance énergétique du bien (DPE)


Informations non contractuelles
Localisation & accès
Transports en commun à proximité
T3
Adresses
approximatives
Adresses
précises
Nos nouveaux biens qui pourraient vous intéresser
Locaux Commerciaux - 90m²
PARIS (75012)
PARIS (75012)
0.00€/mois HT HC
Disponibilité : Septembre 2026
Surface : 90 m²
Locaux Commerciaux - 100m²
PARIS (75016)
PARIS (75016)
0.00€/mois HT HC
Disponibilité : Nous consulter
Surface : 100 m²
Les entrepreneurs ayant consulté cette offre ont aussi consulté celles ci
Locaux Commerciaux - 544m²
PARIS (75020)
PARIS (75020)
14 833.52€/mois HT HC
Disponibilité : Immédiate
Surface : 544 m²
Locaux Commerciaux - 320m²
LILLE (59000)
LILLE (59000)
11 250.13€/mois HT HC
Disponibilité : Immédiate
Surface : 320 m²
Bureaux et Locaux Commerciaux - 68.90m²
MAUREPAS (78310)
MAUREPAS (78310)
954.50€/mois HT HC
Disponibilité : Immédiate
Surface : 68.90 m²
Locaux Commerciaux - 105m² Divisibles à partir de 50 m²
ELANCOURT (78990)
ELANCOURT (78990)
1 000.00€/mois HT HC
Disponibilité : Immédiate
Surface : divisibles à partir de 50 m²