Retour
Disponibilité Immédiate
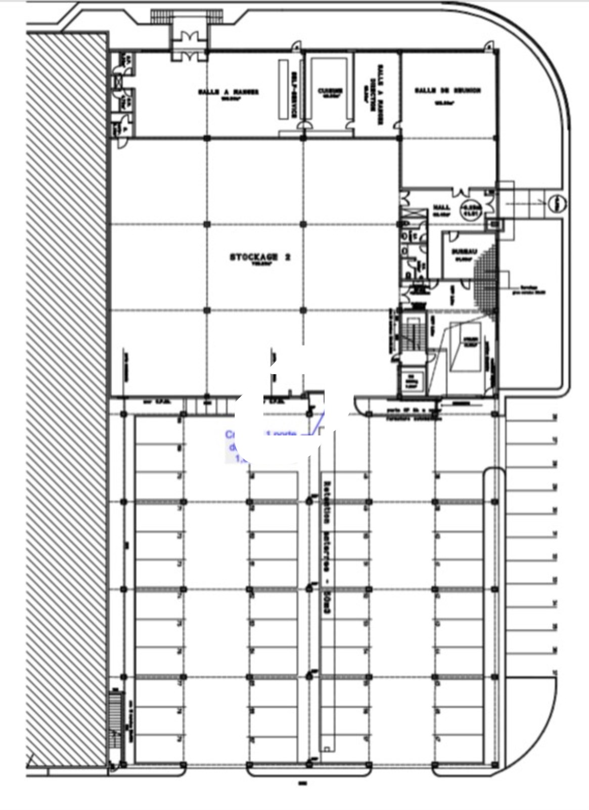
À Louer Locaux d'Activités 13 462 m² LE BLANC MESNIL (93150)
Ajouter au comparateur
Vous souhaitez faciliter votre recherche ?
Créez un compte
Présentation du bien
Situé dans la Zone d’Activité du Blanc Mesnil, à proximité immédaite des autoroutes A3, A1 et A104, Immprove vous propose à la location un bâtiment indépendant d’une surface de 13 462 m², sur un terrain de 9 961m².
Surface totale
Nature
Divisibilité
Etat des locaux
13 462 m²
Locaux d'Activités
Non
Bon état
Prix & Conditions
Loyer :
130 € /m²/an (HT/HC)
145 838 € /mois (HT/HC)
1 750 060 € /an (HT/HC)
Impôt foncier :
18.60
Taxe bureaux :
2.07
Dépôt de garantie :
3 mois de loyer HT HC
Prestations & équipements du bien
Les espaces de travail
Site clos . Bureaux cloisonnées et en open space.
Eclairage : LED
Le confort au quotidien
Charge au sol : audit en cours
Les accès
Accès véhicules légers
Accès poids lourds
Double accès
Aire de manœuvre
Aire de chargement
Portail d'accès
Quai : 3
Porte sectionnelle de plain-pied : 9
Prestations spécifiques
Hauteur libre : entre 5 et 8 mètres
Puissance électrique : à définir
Chauffage : à définir
Autres
Réfectoire
Vestiaire
Sanitaires
Répartition & surfaces des espaces
Tableau des divisibilités
| Type | Étage | Surface | Loyer (€/m²/an HT HC) |
Charges (€/m²/an HT HC) |
|---|---|---|---|---|
| Activités | 13 462 m² | 130.00 | Prix sur demande |
Performance énergétique du bien (DPE)


Informations non contractuelles
Localisation & accès
Transports en commun à proximité
45
Accès routier
A1/A3
Aéroport : Charles De gaulle
Adresses
approximatives
Adresses
précises
Nos nouveaux biens qui pourraient vous intéresser
Locaux d'Activités - 472m²
LE BLANC MESNIL (93150)
LE BLANC MESNIL (93150)
5 900.00€/mois HT HC
Disponibilité : Immédiate
Surface : 472 m²
Locaux d'Activités - 1 044m²
LE BLANC MESNIL (93150)
LE BLANC MESNIL (93150)
9 570.00€/mois HT HC
Disponibilité : Immédiate
Surface : 1 044 m²
Locaux d'Activités - 2 504m²
LE BLANC MESNIL (93150)
LE BLANC MESNIL (93150)
33 386.67€/mois HT HC
Disponibilité : Immédiate
Surface : 2 504 m²
Locaux d'Activités - 4 303m² Divisibles à partir de 740 m²
LE BLANC MESNIL (93150)
LE BLANC MESNIL (93150)
20 875.00€/mois HT HC
Disponibilité : Immédiate
Surface : divisibles à partir de 740 m²
Les entrepreneurs ayant consulté cette offre ont aussi consulté celles ci
Locaux d'Activités - 172m²
MARTILLAC (33650)
MARTILLAC (33650)
1 900.03€/mois HT HC
Disponibilité : Immédiate
Surface : 172 m²
Locaux d'Activités - 1 940m² Divisibles à partir de 403 m²
MEYZIEU (69330)
MEYZIEU (69330)
12 249.89€/mois HT HC
Disponibilité : Selon les lots
Surface : divisibles à partir de 403 m²
Locaux d'Activités - 5 112m² Divisibles à partir de 150 m²
BERNOLSHEIM (67170)
BERNOLSHEIM (67170)
2 918.70€/mois HT HC
Disponibilité : Novembre 2026
Surface : divisibles à partir de 150 m²
Locaux d'Activités - 154m²
SAINT HERBLAIN (44800)
SAINT HERBLAIN (44800)
1 600.06€/mois HT HC
Disponibilité : 1er juin 2026
Surface : 154 m²