Retour
Disponibilité Immédiate
À Acheter Bureaux et Locaux Commerciaux 170 m² BORDEAUX (33000)
Ajouter au comparateur
Vous souhaitez faciliter votre recherche ?
Créez un compte
Présentation du bien
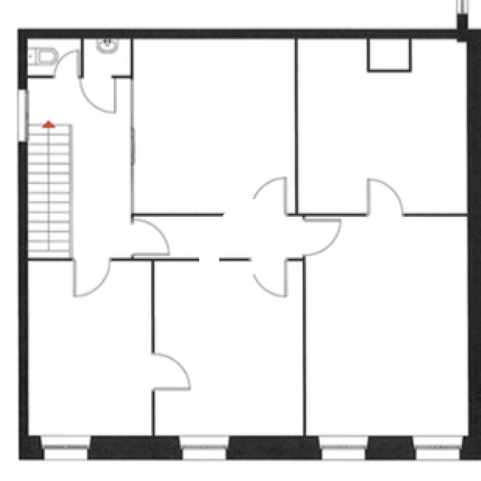
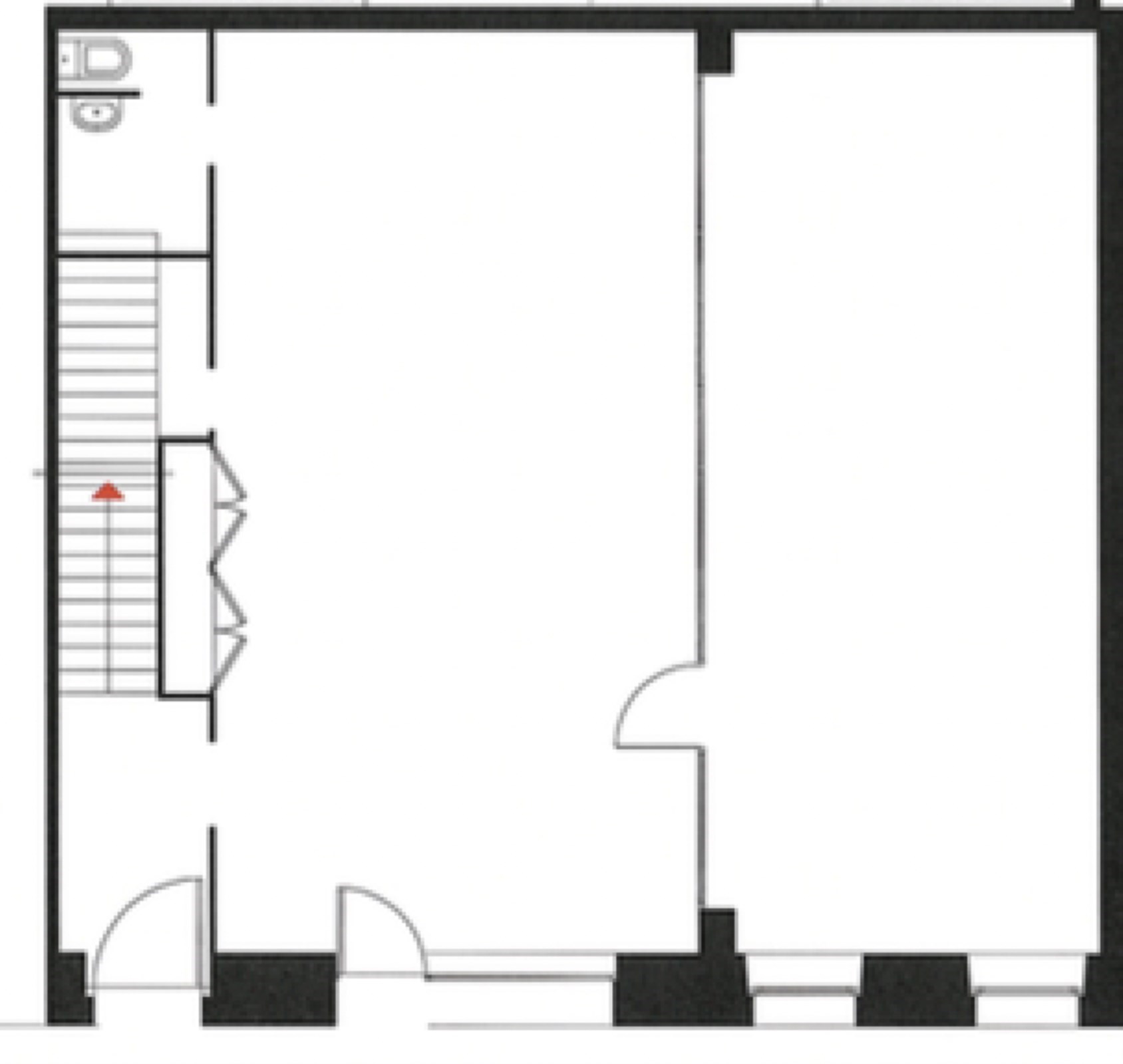
Dans une rue calme dans le quartier des Chartrons, IMMPROVE vous propose à l’achat un immeuble à rénover sur deux niveaux. Actuellement à usage commercial, il peut également être transformé en deux appartements. Idéal investisseur.
Surface totale
Nature
Divisibilité
Etat des locaux
170 m²
Bureaux et Locaux Commerciaux
Non
Travaux à prévoir
Prix & Conditions
Vente :
5 588.24 € (HD)
5 588.24 € /m² (HD)
Impôt foncier :
2345.00
Prestations & équipements du bien
Le bâtiment
Immeuble ancien
Façade en pierres de taille
Les espaces de travail
Double accès . Travaux à prévoir
Les accès
Accès privatif sur rue
Autres
Deux entrées
Vitrine
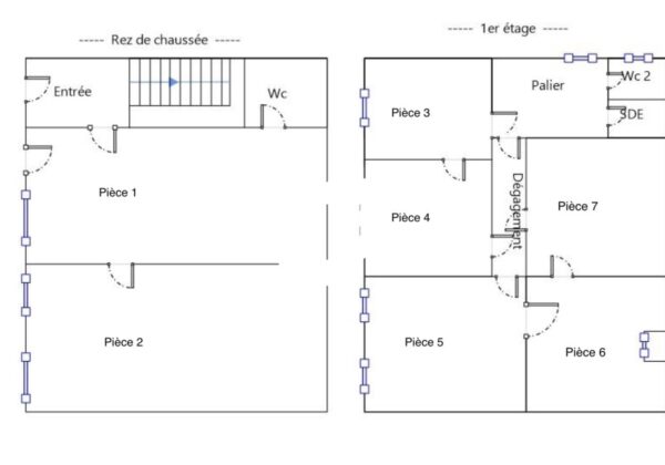
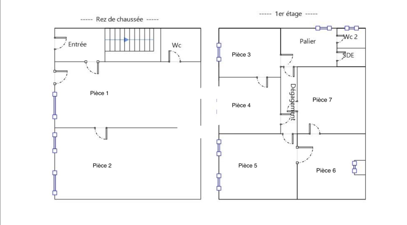
7 pièces
2 sanitaires
Possibilité de diviser en deux lots
Possibilité d’aménager les combles de 90 m²
Répartition & surfaces des espaces
Tableau des divisibilités
| Type | Étage | Surface | Prix achat (€/m² HT HC) |
Charges (achat) (€/m² HT HC) |
|---|---|---|---|---|
| Locaux Commerciaux | Rez-de-Chaussée | 80 m² | 5 588.24 | Prix sur demande |
| Bureaux | 1er étage | 90 m² | 5 588.24 | Prix sur demande |
Performance énergétique du bien (DPE)


Informations non contractuelles
Localisation & accès
Transports en commun à proximité
C : arrêt Paul Doumer
15
Adresses
approximatives
Adresses
précises
Nos nouveaux biens qui pourraient vous intéresser
Bureaux et Locaux Commerciaux - 233m² Divisibles à partir de 86 m²
BORDEAUX (33000)
BORDEAUX (33000)
479 999.10€ HT HC
Disponibilité : Immédiate
Surface : divisibles à partir de 86 m²
Bureaux et Locaux Commerciaux - 423.92m²
BORDEAUX (33300)
BORDEAUX (33300)
0.00€ HT HC
Disponibilité : Immédiate
Surface : 423.92 m²
Les entrepreneurs ayant consulté cette offre ont aussi consulté celles ci
Bureaux et Locaux Commerciaux - 328m²
LEVALLOIS PERRET (92300)
LEVALLOIS PERRET (92300)
2 144 998.64€ HT HC
Disponibilité : 1er juillet 2026
Surface : 328 m²
Bureaux et Locaux Commerciaux - 2 377.32m² Divisibles à partir de 150 m²
SAINTE LUCE SUR LOIRE (44980)
SAINTE LUCE SUR LOIRE (44980)
0.00€ HT HC
Disponibilité : Deuxième semestre 2026
Surface : divisibles à partir de 150 m²
Bureaux et Locaux Commerciaux - 116m²
COIGNIERES (78310)
COIGNIERES (78310)
Prix sur demande
Disponibilité : Immédiate
Surface : 116 m²
Bureaux et Locaux Commerciaux - 153m²
PARIS (75006)
PARIS (75006)
0.00€ HT HC
Disponibilité : Immédiate
Surface : 153 m²