Retour
Bureaux - 2 162.80m² à Louer
. Gardien - Accès sécurisé - Signalétique
. Hôtesse d'accueil
. Ascenseur Locaux climatisés et modulables aménagés en :
1er étage
. Plateau de 310,4 m² loué meublé
2ème étage :
. Bureaux cloisonnés
. Divisible à partir de 400 m²
Bureaux - 2 162.80m² à Louer
PARIS (75008)
DESCRIPTION
A proximité de la place de l'Etoile, Immprove vous propose à la location à la division des plateaux de bureaux climatisés divisibles à partir de 310 m². Uniquement en bail dérogatoire.
En savoir plus
. Immeuble haussmannien de standing. Gardien - Accès sécurisé - Signalétique
. Hôtesse d'accueil
. Ascenseur Locaux climatisés et modulables aménagés en :
1er étage
. Plateau de 310,4 m² loué meublé
2ème étage :
. Bureaux cloisonnés
. Divisible à partir de 400 m²
Consommations énergétiques


Informations non contractuelles
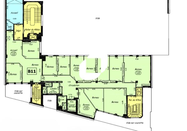
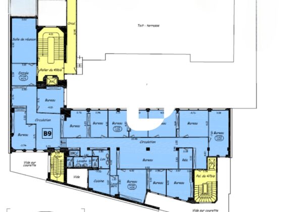
Tableau des divisibilités
| Type | Étage | Surface | Loyer (€/m²/an HT HC) |
Charges (€/m²/an HT HC) |
|---|---|---|---|---|
| Parkings | 2 400.00 | Prix sur demande | ||
| Parkings | 3 200.00 | Prix sur demande | ||
| Archives | Sous-Sol | 21 m² | 230.00 | Prix sur demande |
| Archives | Sous-Sol | 78 m² | 230.00 | Prix sur demande |
| Parkings | Sous-Sol | 2 400.00 | Prix sur demande | |
| Bureaux | 1er étage | 310 m² | 400.00 | 64.00 |
| Bureaux | 2ème étage | 1 009 m² | 400.00 | 64.00 |
| Bureaux | 3ème étage | 444 m² | 400.00 | 50.00 |
| Bureaux | 4ème étage | 400 m² | 400.00 | 50.00 |
Caractéristiques
Bail dérogatoire au plus tard jusqu’en Décembre 2025
- Surface 2 162.80 m²
- Etat des locaux Bon état
- Nbre Parking 16
- Ascenseur oui
- Gardien oui
Adresses
approximatives
Adresses
précises
Nos nouveaux biens qui pourraient vous intéresser
Bureaux - 602m² Divisibles à partir de 289 m²
à Louer
PARIS (75008)
Voir le bien
42 641.67€/mois HT HC
Les entrepreneurs ayant consulté cette offre ont aussi consulté celles ci
Les services Immprove
Une gamme complète de services qui facilitent vos démarches et destinée à satisfaire vos attentes